Portfólio












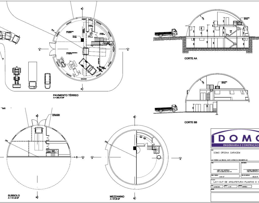
Construção de Domo oficina
principais serviços
Projeto e execução de edifício em alvenaria estrutural, incluindo terraplenagem, estrutura de arrimo, fundação em radier, Instalações, pintura e acabamentos.
área
491,92 m²
obra em andamento
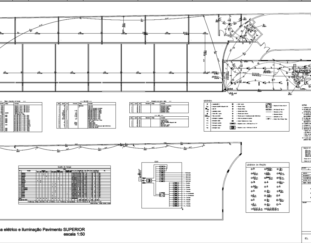
Ed. Palladium Residence
principais serviços
Assessoria técnica, emissão de laudos, execução de projetos complementares de instalações elétricas e supervisão das obra de ampliação de estacionamento e reforço estrutural
área
1200 m²
obra em andamento

























Reforma de cobertura
principais serviços
Substituição de estrutura de madeira e telhas danificadas, projeto e execução de reforço em estrutura metálica e de concreto armado
área
200 m²
conclusão
Agosto de 2024
Reforma de cobertura
principais serviços
substituição de telhamento existente, por telhas novas de fibrocimento na espessura de 8 mm, além de imunização do madeiramento existente, utilizando cupinicida incolor.
área
750 m²
conclusão
Setembro de 2019

















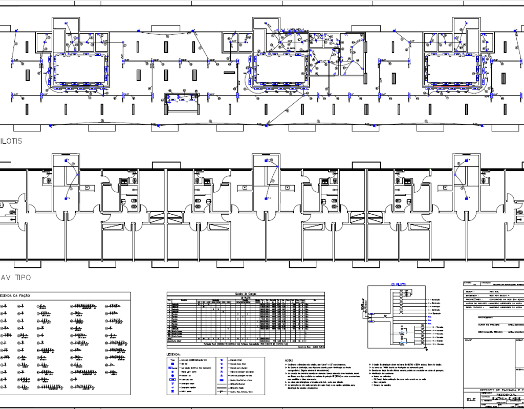
Revitalização de Pilotis e Subsolo
principais serviços
Instalações elétricas e hidrosanitárias, reparo estrutural, substituição de pisos forros e revestimentos, instalação de fechamentos e guarda corpos de vidro, execução de rampa de acessibilidade, revitalização de pilastras de mármore, pintura e acabamentos.
área
1450 m²
conclusão
Janeiro de 2021
Reforma residencial
principais serviços
Instalações elétricas, hidrosanitárias e de ar condicionado, reforço estrutural com vigas metálicas, substituição de pisos, forros, revestimentos, esquadrias, impermeabilizações, execução de dreno, plantio de grama, pintura e acabamentos.
área
220 m²
conclusão
Janeiro de 2022

















Projetos
principais serviços
Georreferenciamento de imóveis e regularização fundiária, projeto de drenagem e infra-estutura urbana, piso estaqueado para galpão industrial, projetos de instalações elétricas, elaboração de quadros NBR 12721 para empreendimentos
